Tuinhuis Japan 608 x 390 cm






Laagste prijs garantie
Persoonlijk advies van een specialist
Maak een afspraak in ons experience center
Informatie over dit product
Tuinhuis Japan 608 x 390 cm






Artikelomschrijving
Tuinhuis Japan is een ruime blokhut, waar u optimaal plezier van kunt beleven!
Tuinhuis Japan
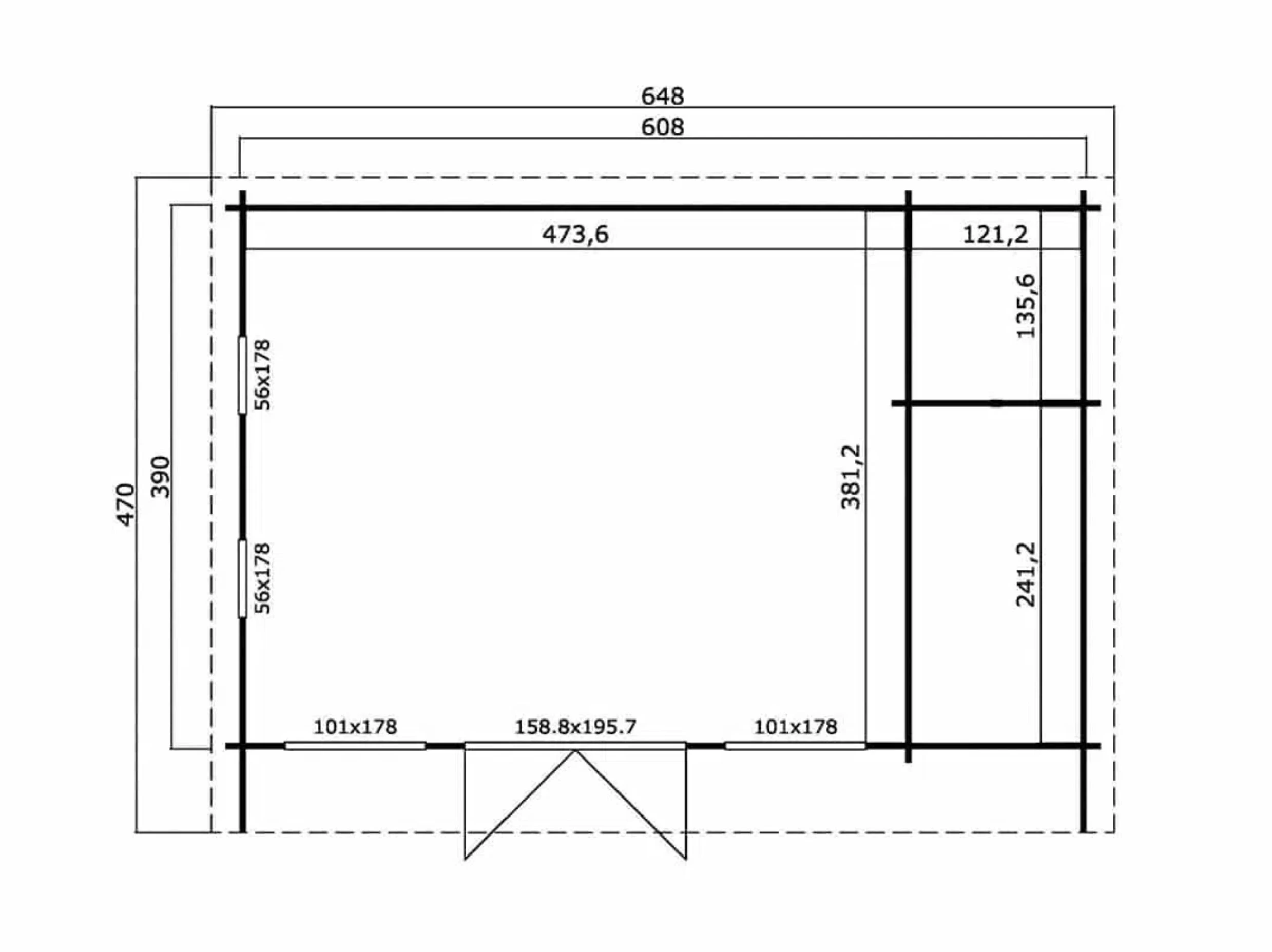
Het tuinhuis heeft een breedte van 608 cm, een diepte van 390 cm en een hoogte van 251 cm. Het tuinhuis wordt geleverd met een glazen dubbele deur van 159 cm breed en 196 cm hoog en twee ramen. Daarnaast worden er ook twee enkele deuren voor binnen geleverd van 84 cm breed en 190 cm hoog. Het tuinhuis wordt geleverd inclusief een vloer van Noord-Europees vuren. Het tuinhuis kan eenvoudig worden opgebouwd met 44 mm profielen met veer en groef van Scandinavisch vuren hout. De profielen zijn gemakkelijk te stapelen waardoor het tuinhuis eenvoudig op te bouwen is.
Constructie
Het tuinhuis is gemaakt van Noord-Europees vuren, een houtsoort met weinig hars en speciaal geselecteerd voor de fijne vezelstructuur en de kleine kwasten. Om de levensduur van het tuinhuis te verlengen kan gebruik gemaakt worden van buitenbeits. Behandel circa elke 5 jaar het hout met buitenbeits om de optimale kleur en levensduur te verlengen. Bij een tuinhuis is de fundering belangrijk, een goede fundering voorkomt verzakkingen en zorgt voor een langere levensduur. Zorg er altijd voor dat de ondergrond stevig verhard en waterpas is, zo voorkom je verzakkingen. De fundering kan bestaan uit gestort beton, maar ook een strak gelegd terras van betonnen tegels kan voldoen. Het dak is opgebouwd uit profielen met veer en groef van Scandinavisch vuren hout en heeft geen dakbedekking. Wij adviseren om hiervoor zelfklevende dakfolie of EPDM te bestellen.
Levering als bouwpakket
Het tuinhuis wordt geleverd als een bouwpakket, waarbij diverse onderdelen zijn voorbewerkt. Daarnaast leveren wij de blokhut inclusief een handleiding, hierdoor is het verblijf gemakkelijk in elkaar te zetten.
Inhoud
- 1 x Tuinhuis Japan
- 1 x Dubbele deur
- 2 x Raam
- 2 x enkele deur
- 1 x Vloer
- 1 x Opbouwhandleiding
- 1 x Bevestigingsmateriaal
Afmetingen
- Funderingsmaat: 608 (B) x 390 (D) cm
- Hoogte: 251 cm
- Oppervlakte: 22,84 m²
Specificaties constructie
- Type: Tuinhuis Japan
- Houtsoort: Geschaafd vuren
- Bewerking: Onbehandeld
- Wanddikte: 44 mm
Heeft u vragen over het tuinhuis? Neem dan contact op met een van onze medewerkers. Wij helpen u graag!
Specificaties
Look & Presentatie
Materiaalsoort Hout |
Materiaal specificatie Vuren |
Behandelmethode Onbehandeld |
Type product Tuinhuis |
Kleur Blank |
Productidentificatie
SKU LM4424702 |
Merk Lasita Maja |
Levertijd Binnen 4-6 weken in huis |
Dimensies
Diepte 390 cm |
Breedte 608 cm |
Specificaties Bijgebouwen & bergingen
Type dak Lessenaarsdak |
Type wand Schuur |
Laagste prijs garantie
Persoonlijk advies van een specialist
Maak een afspraak in ons experience center





